Following a request from the Welles Park Advisory Council, the support of many area neighbors, and the financial backing of Alderman Martin’s 2022 participatory budgeting process, Chicago Park District has provided a proposal to upgrade the area of park immediately north of the Montrose and Oakley intersection.
These improvements will rehab the historic horseshoe pits, add cornhole (bags) courts, add three brand new pickleball courts and rehab the sand volleyball court. We do not have a timeline for when these improvements will be made.
Welles Park Advisory Council is seeking the feedback of the community on these proposed improvements to collate and share with the Park District. Please take a moment to review the updated design below. Submit any questions or feedback to our email address at wellesparkac@gmail.com. We are asking that all questions are received by December 31st, 2023 so that we can receive responses prior to our next WPAC meeting on January 8th. We will continue to receive comments up to the January 8th meeting date.
At our WPAC meeting on January 8th, 2024 we will be discussing this during the first half of our meeting at 7 pm so that we can provide the Park District will all feedback by January 10th.
As we receive questions, we will create a “Frequently Asked Questions” section to this post to provide answers to the best of our knowledge. NOTE: We have started this FAQ section below. Read below for common questions we have received. For a full history of this project and the historic nature of the horseshoe pits at Welles, please read this post.

1st Proposal

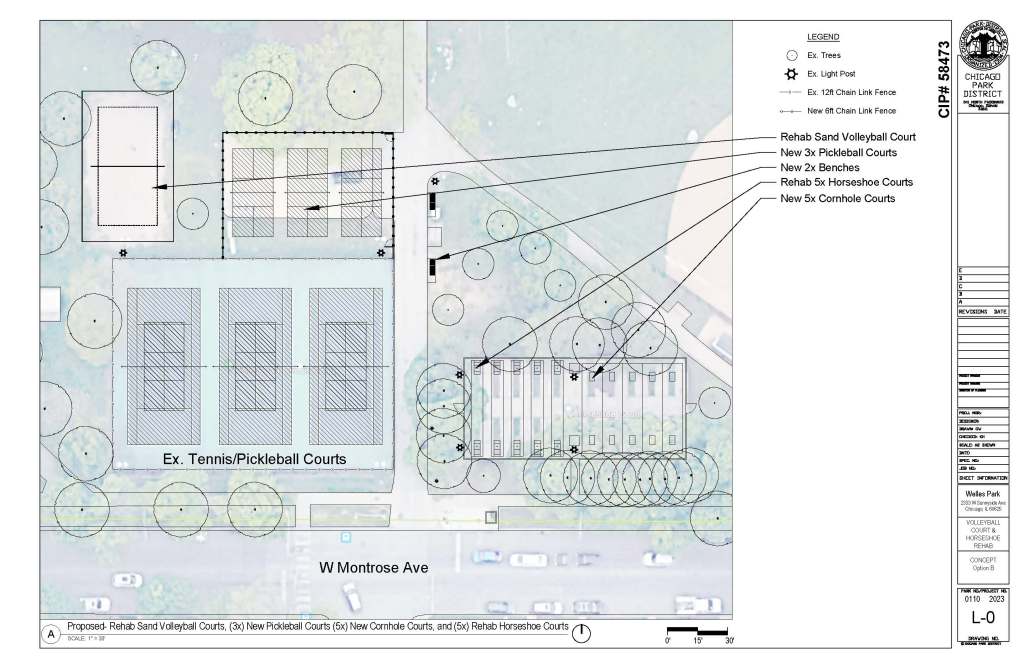
2nd Version (Updated 11/28/23)
Frequently Asked Questions (updated 11/29/23)
Q – Where is the project located? A – This is the area north of the intersection of Oakley and Montrose on either side of the staff drive. This is the south side of Welles Park.
Q – How will this project be funded? A – Alderman Matt Martin (47th Ward) listed this project as part of a participatory budgeting process in 2022 and it was selected to be supported through expiring Tax Incremental Financing funds.
Q – How many pickleball courts will there be? How about horseshoe and bags courts? A – The current design adds three new pickleball courts to be built on the existing concrete pad directly north of the tennis courts. Additional concrete is needed to connect to the tennis courts pad. The current plan is to rehab the horseshoe pits to accommodate five courts for horseshoe and five for bags / cornhole. The earlier graphic showed six horseshoe and four bags but due to a safety concern an updated plan splits these to five and five.
Q – What about lights? A – The current plan is to use the existing lights for the tennis courts and horseshoe pits but we’ve asked the Park District to consider adding lights on the tennis court poles to shine north and illuminate the new pickleball courts.
Q – Any other improvements? A – The sand volleyball court will be rehabbed. There will be a six (6) foot fence around the new pickleball courts. Two new benches will be installed on the east side of the staff drive.
Q – Is there a timeline for installation? A – The Park Advisory Council has not received this information but is expected that this would take place in the spring of 2024.
Q – How can I support this project? A – Provide a comment of support by emailing wellesparkac@gmail.com and if you like the work the Welles Park Advisory Council does advocating on behalf of the community consider making a donation. The WPAC needs your support to bring concerts to the Gazebo, workdays to the Nature Play Area, and other improvements like these new horseshoe pits and pickleball courts. We can’t do it without your help!
